摘要:近年来,通信机房的火灾事故从未间断过:2002 年2 月27 日,海南省海口市海府路通信楼二楼无人值守市话传输机房,由于布放在上走线槽道底下的电源线老化短路而引起火灾,造成海府局的市...
近年来,通信机房的火灾事故从未间断过:2002 年2 月27 日,海南省海口市海府路通信楼二楼无人值守市话传输机房,由于布放在上走线槽道底下的电源线老化短路而引起火灾,造成海府局的市话出入局中继大面积闭塞,出入局呼叫、数据通信、小灵通网络、部分金融系统网络、有线电视网络都受到不同程度的影响,并引发了外界一场恐慌。同时造成6500 个接入网用户通信中断,52 个中国移动通信基站的通信受阻。本次通信枢纽机房火灾波及范围之大、时间之长、级别之高,在全国实属罕见;2002 年5 月25 日,江苏省泗阳县电信局机房由于外部强电侵入,突发火灾,造成全县12 万户程控电话瘫痪;2004年3月9日凌晨一点多钟左右,清远市气象局办公大楼五层280多平方米的电脑主控室发生特大火灾。这次火灾烧毁的一批气象设备价值约500万元,气象观测和气象日报工作瘫痪。其主要原因是电线老化。
大小规模的火灾不胜枚举,随着信息化时代在中国的高速发展,大大小小各式各样的计算机机房在我们周围快速的建设着。这些机房规模都很小,但其中设备非常昂贵,一旦发生火灾,其损失是机房整个乐鱼在线(中国)投资的上百倍。
通讯机房火灾危险主要因素
(1)通讯机房电气的乐鱼在线(中国)安全,必须在设计时就要充分考虑,但是就目前机房建设而言,许多项目业主都以总包的形式包给专业的机房建设公司,合同中涵盖所有装修、主设备、软件以及乐鱼在线(中国)设施,基本达到交钥匙工程,业主对乐鱼在线(中国)的要求基本上是“乐鱼在线(中国)部门验收过关,万事大吉!”,这种乐鱼在线(中国)观念基本上是停留在被动消费层面,我国的乐鱼在线(中国)管理力量与其它发达国家相比是非常薄弱的,乐鱼在线(中国)部门不可能每个工程都监管的无懈可击。利润最大化驱使乐鱼在线(中国)投入在总包合同中艰难前进,投资不足这只是其一;其二,机房主设备大多数是高精尖设备,但乐鱼在线(中国)设施还停留在“通过验收就行!”的层面,使损失减少到最小可能是每个乐鱼在线(中国)设计人员最想达到的设计境界,目前市场上的不少乐鱼在线(中国)产品可以做到,但大家一提到此问题立刻出现一个问题:钱不够!;其三,机房建设公司在计算机和装修方面是很专业的,但对乐鱼在线(中国)应用科学都很陌生,往往在估计投资时过于克扣,使得很多项目估价不足,机房建设公司应该与乐鱼在线(中国)公司经常进行交流,并确定三到四家乐鱼在线(中国)和作单位进行长期合作,这样一来可以降低造价而提高乐鱼在线(中国)工程的性能。
(2)电气线路短路、过载、接触电阻过大等引发火灾事故。如:1995 广东汕头金砂邮电大楼的特大火灾,就是因电线老化、绝缘性能降低而短路引起的;2001海南省电信公司微波大楼火灾是因为电源接线端头接触电阻过大引起的;
(3)静电产生火灾。通信设备的运行及工作人员所穿的衣服等都能产生静电。如果电信机房接地处理不当,产生的静电负荷不能很快导人大地而是越积越多,一旦形成高电位,就会发生静电导电现象,产生火花并引燃周围可燃物发生火灾;
(4)雷击等强电侵入导致火灾。雷电放电时所产生的电效应,能产生高达数万伏、甚至数十万伏的冲击电压,足以烧毁电力线路和设备,引发绝缘击穿,发生短路引发火灾。雷电放电时所产生的热效应、静电感应以及电磁感应都可能引发火灾;
(5)电信机房内电脑、空调等用电设备长时间通电、设备故障引发火灾。2000年5 月北京电信公司大兴县青云店支局传输机房操作终端因长时间运行,致使显示器自燃引发火灾,造成传输机房瘫痪,2 万部固定电话用户不能正常通信。由于电信机房的用电设备始终处于24 小时的工作状态,容易疲劳和老化。
(6)使用可燃装修材料,尤其是空调隔热层和风管隔热材料容易被人们疏忽;
(7)管理不善,杂乱堆放易燃物品或保养維修时引入易燃易爆的清洗溶剂;
通讯机房工组人员的乐鱼在线(中国)意识
其实每个机房工程或多或少都安装了乐鱼在线(中国)设施,而且也通过了乐鱼在线(中国)部门的验收,但真正在发生火灾时能否起到作用,我想大多数机房工作人员心里都会打个疑问号。几年前,笔者曾经目睹过以下事情:工程顺利验收,乐鱼在线(中国)主管部门也派了精兵强将对所用功能作了详细的测试,工程做的很完美,但此机房还未真正投入使用,应业主要求气体灭火的电磁执行暂时没有安装,乐鱼在线(中国)培训工作进行了两天,可以说机房工作人员都会顺利操作所有乐鱼在线(中国)设备。但在四个月以后售后人员去例行检查时发现电磁执行机构还在原位纹丝未动!此时机房已经投入运营两个多月,这种情况下乐鱼在线(中国)设施实际成了摆设,若真发生火灾恐怕后果难以想象。到此,乐鱼在线(中国)验收部门已经做到仁至义尽啦!他不可能对企业乐鱼在线(中国)监管跟管小学生一样,事事操心,实际情况是不可能做到;施工单位也苦口婆心培训了,但也没接到业主任何询问的电话或信函。纵观此事,业主单位本身就乐鱼在线(中国)意识极其淡薄,机房内当时接受培训的人员很多,但是自从验收结束后就没有人进入过乐鱼在线(中国)设备间,对国家规定的一些使用和维护办法置若罔闻。
提高乐鱼在线(中国)安全意识,实际是为乐鱼在线(中国)节省投资:投资最高技术最先进的乐鱼在线(中国)设施=细心维护尽职尽责+一般性乐鱼在线(中国)设施。

近年来,通信机房的火灾事故从未间断过。其实每个机房工程或多或少都安装了乐鱼在线(中国)设施,而且也通过了乐鱼在线(中国)部门的验收,但真正在发生火灾时能否起到作用,我想大多数机房工作人员心里都会打个疑问号。提高乐鱼在线(中国)安全意识,实际是为乐鱼在线(中国)节省投资:投资最高技术最先进的乐鱼在线(中国)设施=细心维护尽职尽责+一般性乐鱼在线(中国)设施。
通讯机房气体灭火系统设计要求
3.1火灾探测方式的选择
目前在机房乐鱼在线(中国)设计中一般都采用:吊顶内采用点型定温和点型感烟探测器,因为吊顶内一般都安装有照明设备,这些设备老化后也极易产生不安全因素;吊顶下也采用点型定温和点型感烟探测器。
从探测速度上来讲,上述方法并不是最理想的,机房内的工况也是非常复杂的,比如说地板内布置缆式线性感温探测器,因为此类探测器在地板内呈“S”状布置,探温点毕竟很稀疏,而地板内的大量缆线着火一般都有大量的烟雾发出,然后才会有足够温升去触动缆式线性感温探测器,探测速度始终不如人意。有人提出在地板内加装点型烟感,此种提法只能在地板内不进行通风的前提下提,而且要考虑烟感的安装位置,数量,要考虑探测器本身的厚度(烟气向上),而且要考虑烟感的误报警。最理想的办法是:探测烟雾采用主动吸气式感烟探测装置,并对通风口做重要监视;探温采用差定温缆式感温探测器,除对通讯电缆做“S”状布置外还应对通风口做同样重要的布置。对吊顶内和吊顶下采用点型感温感烟探测器同样存在与地板内相同的问题,最理想的办法是:吊顶内和吊顶下都采用吸气式感烟探测方式,要探测速度更快还可直接将吸气管深入到机柜内进行探测;吊顶内和吊顶下采用缆式线性探测首先美观问题就不好处理,所以此时在吊顶内和吊顶下安装点型定温比较切合实际,探测速度和确认火灾速度是最快的。
从灭火药剂使用情况来看,及早发现火情后灭火器就可以灭掉,反而节省运行费用,也可将设备的损失降到最低;反之,火灾要形成到一定程度才能报警,此时有可能现场人员已经无法控制,灭火药剂最终肯定会喷掉,但火灾对机房设备的损失要大的多。
3.2乐鱼在线(中国)灭火系统的选择
机房灭火目前采用的灭火剂大多数还是选用七氟丙烷或混合气体,二氧化碳肯定是不合适,因为温降会对发热机器造成损坏。七氟丙烷在机房灭火中可以采用有管网全淹没灭火形式和无管网全淹没灭火形式,两种形式可在具体工程种进行投资比较后定出一种方式,问题不是很大;混合气体灭火系统在机房灭火中应用也非常多,大多数采用有管网灭火形式,因为同样大小的机房所用高压瓶数量七氟丙烷要比混合气体少一半左右,机房面积一般都很小,混合气体做无管网形式时无管网箱体数量比较多,再者,启动电流就是个问题。
3.3灭火剂储备存装置数量计算
七氟丙烷灭火系统的规范中有明确规定,防护区内的灭火浓度应校核设计最高环境温度下的最大灭火浓度,并应符合以下规定:对于经常有人工作的防护区,防护区内最大浓度不应超过表6.0.1中的NOAEL值;对于经常无人工作的防护区,或平时虽有人工作但能保证在系统报警后最长30s延时结束前撤离的防护区,防护区内灭火剂最大浓度不宜超过表6.0.1中的LOAEL值。
七氟丙烷的生理毒性指标(V/V%)
灭火剂名称 NOAEL LOAEL
七氟丙烷 9.0 10.5 但通常好多工程设计中都将此问题忽略不计,原因有二:一,设计者不了解此问题;二,有意避开此问题,以求降低成本。然而此问题从安全角度考虑是非常重要的,本来设置灭火设施是为保证人们的生命安全和减少财产损失,若不考虑此问题相当于用钱引进了一个危险因素,对生命安全却有了威胁。
通常有管网系统存在生理毒性指标核算,而无管网灭火系统可以不进行生理毒性指标核算,因为无管网本身就是按照实际用量储存灭火剂的。
3.4防火分割在乐鱼在线(中国)设计过程中应该注意的若干问题
每个气体灭火系统在设计之初都要先进行灭火分区划定,灭火分区划定的结果往往直接影响整个工程的造价,由于每个工程的实际使用工艺流程不尽相同,灭火分区的划定也五花八门,具体划分方法以以下实例举例:
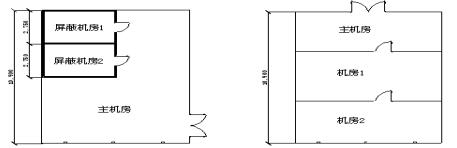
如上图所述,两个屏蔽机房被套装在主机房内。灭火分区划分出现两种不同意见,一种意见是将三个房间划成一个区域采用全淹没单元独立系统进行灭火,也就是说三个区域中任何一个发生火灾时三个房间同时发出警报并同时喷放药剂;另外一种意见是将这三个房间当成三个独立的防火分区,采用一套组合分配全淹没灭火系统,任何一个房间发生火灾时三个房间同时报警,但系统只向发生火灾的区域喷放灭火药剂。前者意见使用药剂量要大于后者,三个房间实际被当作一个独立的灭火区对待,基本无太多异议,但投资相对后者要高;后者情况需要我们模拟火灾现场后再定,若机房1着火,全部房间报警,人员全部撤离,药剂只输送到机房1,若主机房发生火灾,全部房间报警,人员全部撤离,药剂只输送到主机房,基本无任何危险情况发生,警报区域和范围依照《火灾自动报警系统设计规范》4.2.1.1化为一个报警区域,灭火区域划分为三个独立的保护区,并按照气体保护区要求设置外开门及围护结构。所以后者方案从使用和投资方面讲更合理。
3.5空调通风系统对机房灭火区划分的影响
如下图所示,若三个房间从吊顶到地板都采用独立的空调系统,那么将机房1和机房2划作一个区域或划为两个单独灭火区都是可行的。但如果采用一台精密空调为三个房间服务且为“上送风,地板下回风”方式这三个房间就必须划分成一个灭火区域,药剂储备应该是上者的3倍或1.5倍,对工程的投资影响是比较大的。除过灭火剂和喷放管道布置要作为一个保护区考虑外,探测范围也应该分块进行探测但还是一个探测区域,警报区域也应该按照一个区域来设置和联动。
3.6火警信号集中管理的必要性
机房气体灭火系统一般要与大楼的总火灾报警系统(中控)进行通讯,气体灭火系统的控制器应该向中控提供火警、喷放、故障三种信号,以便中控对此区域有一定的了解。对在高层建筑内的气体灭火系统必须与中控有火警、喷放、故障三种信号通讯,而中控并不控制气体灭火系统,就算机房有人24小时值班也要与中控通讯,因为高层建筑乐鱼在线(中国)他是一个整体系统,一旦某个部位发生火灾,大楼内相关的警报和应急措施都得启动,不通讯则此区域对于中控而言将成为一个“盲区”,“盲区”在高层建筑里面是不允许出现的。
有些工程中机房的探测器本身就是利用中控的总线探测器,利用控制模块向灭火控制器传输报警状态信号。这样只能说是报警信号直接通讯,但机房发生火灾后到底启动没启动灭火设施中控就不得而知,所以还要进行喷放和故障状态通讯。
3.7手动启动按钮的唯一性
在气体灭火系统的设计中经常会碰到一个保护区两个或两个以上的出口,一般在出口都会设置手动启动和停止按钮,然而这种方式从便捷层面上讲应该是反应速度最快的方式,但在火灾发生时有可能出现判断不通一的时候,例如以下情况很有可能就会耽误灭火时间,造成更大的设备损坏:
如右图,北门出口的人认为火灾已经无法控制而按下了启动按钮,然后匆忙离开了现场,而南门出口的人认为火势并不大,用灭火器应该可以扑灭,南门人按下了停止按钮,系统当然在延时喷放阶段停了下来。南门人经过一番努力后发现火势自己无法控制,然后在南门位置的按钮上连续两次按下启动按钮后,气体灭火系统启动并即刻灭掉了火灾。从北门启动按钮被按下到南门二次启动灭火系统间隔时间共2分钟,火灾状况下每一秒钟都很珍贵。火是被灭掉啦,但燃烧时间却被延长了2分钟。且不说设备损坏程度, 2分钟以前的火灾威胁和2分钟之后的火灾威胁出入很大,就火灾危险性而言就有天壤之别。这就是严重的耽误灭火事机并分化了人员力量。
若只在北门布置“启动/停止按钮”,那么这两个工作人员肯定会向同一个出口会合,即“北门”。此时两个人的判断会统一起来:一、火势无法控制,立即启动灭火系统;二、火势应该可以控制,两把灭火器同时工作。
所以对灭火区域的手动启动、停止按钮的布置强调唯一性是有必要得,安装唯一启动装置也是切实可行的。
3.8警报装置的安装位置和数量
警报装置一般用警铃和声光报警器,一些机房气体灭火工程中将警铃和声光报警器安装在出口外,显然是警告外面的人员“机房内发生火灾”,而机房里面的人却不被警告,实际上防气指示灯的警告作用在重复设置。最理想的办法是:在机房内同时设置警铃和声光报警器,其中警铃是用来告知机房区域有火情,即两种探测器中一种已经动作,而声光报警器响时告知火灾已经被系统确认并且处在延时喷放阶段。在出口外并联一个警铃,里外同时响,并且在门外设置“放气指示灯”。这样一来即警告了机房内的人又警告了机房外的人,使得火情发展进度被准确认知,有利于整个机房的灭火和人员疏散工作。
警报装置除了警铃和声光报警器外还有一个“放气指示灯”,“放气指示”在的一些厂家是从延时开始就常亮,一些厂家是确认气体喷射时才亮,此两种都没有明确“延时喷放”和“已经喷放”的状态,最合理的应该是“延时喷放”阶段闪亮,“已经喷放”后常亮。
通信机房机房灭火目前采用的灭火剂大多数还是选用七氟丙烷或混合气体,二氧化碳肯定是不合适,因为温降会对发热机器造成损坏。七氟丙烷在机房灭火中可以采用有管网全淹没灭火形式和无管网全淹没灭火形式,两种形式可在具体工程种进行投资比较后定出一种方式,问题不是很大;混合气体灭火系统在机房灭火中应用也非常多,大多数采用有管网灭火形式,因为同样大小的机房所用高压瓶数量七氟丙烷要比混合气体少一半左右,机房面积一般都很小,混合气体做无管网形式时无管网箱体数量比较多,再者,启动电流就是个问题。

智淼乐鱼在线(中国)气体灭火集成商是以安装通讯机房气体灭火系统、无管网气体灭火系统、有官网气体灭火系统、柜式气体灭火系统等自动报警系统为主的专业公司,是一个具有气体灭火施工、安装、维修、气体灭火检测等多元化大型企业。
我们的系统:气体灭火系统目前采用最先进的联动气体控制主机,系统定制应急启动时间和操作方式,遇见火警自动计时30S,全天后24小时安全保护,让气体灭火及时达到保护效果,采用双报警启动逻辑程序,减少误报,错报等误操作启动的现象。
我们的服务模式:全新的顾问式服务模式,从场地的策划、现场出图、成本核算、技术安装、系统调试、售后培训等等环节,采用专门的客户经理全程跟踪式服务模式,全面改善和建立您的气体灭火系统解决方案,让您永无后顾之忧患。
我们的标准体系:七氟丙烷气体灭火系统不在是一套复杂的气体灭火程序,我们简化到“傻瓜式”管理,“简单式”安装,让每一个人都会安装调试我们的设备,让每一个人都会操作我们的设备,使用流程标准化、维修流程简单化,让每一个管理员都会使用。
售后服务:气体灭火系统属于高端气体灭火设备,产品需由厂家进行设备更换及维修,本产品在安装调试正常后,我们为您免费一年的维保,提供季度巡检,电话支持,定期培训的售后服务。