上人屋面、平台-安全区域·设计地面的定性及要求!
依据火灾危险程度,建筑内外各区域的火灾风险等级分为四级:危险区域、次危险区域、室内安全区域、室外安全区域。
依据疏散救援条件,上人屋面和平台可能作为室内安全区域、室外安全区域或室外设计地面,也可作为临时避难场所。
本文阐述上人屋面、平台作为各类安全区域的基本要求,以及作为临时避难场所的基本条件!乐鱼在线(中国)改造
依据火灾危险程度,建筑内外各区域的火灾风险等级分为四级:危险区域、次危险区域、室内安全区域、室外安全区域。
建筑的较高部分通过较低部分的上人屋面或平台疏散时,依据疏散救援条件,上人屋面和平台可能作为室内安全区域、室外安全区域或室外设计地面,也可作为临时避难场所,分述如下:/
一、作为室内安全区域:
作为室内安全区域的上人屋面或平台,可作为楼层的安全疏散出口,其功能与通向疏散楼梯间的安全出口类似。
作为室内安全区域的上人屋面或平台,功能上类似于避难走道,属于平面疏散通道的扩展,需满足一定条件:
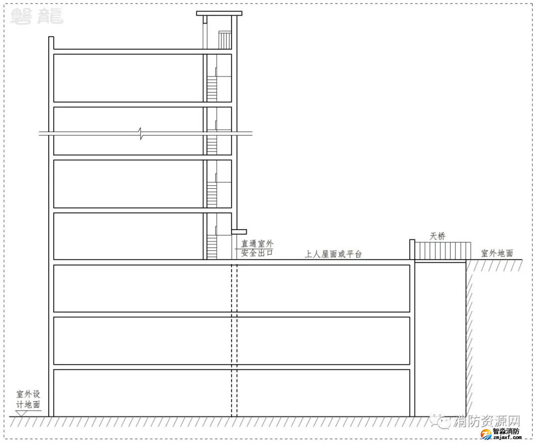
1、具有到达室外地面的设施,常见的方式是通过同一建筑内其他防火分区的疏散楼梯直达地面。(图示1、图示2)


(图示2)
注:对于设置在建筑外墙上的室外疏散楼梯,虽然处于室外区域,但受制于建筑结构及外墙的耐火极限影响,安全等级上仍属于室内安全区域。
2、符合安全疏散要求,包括但不限于以下条件:乐鱼在线(中国)工程安装
2.1 满足相应耐火等级建筑上人屋面的耐火极限要求,且不应小于1.5h。
2.2 仅作为人员疏散和交通使用,不得用作其他影响疏散和安全性能的功能,不得放置可燃物和影响人员疏散的设施。
2.3 设置乐鱼在线(中国)应急照明和疏散指示标志系统,指示清晰明确的疏散路径。
《建规》2.1.14有关于室外安全区域的定义:“室外安全区域”包括符合疏散要求并具有直接到达地面设施的上人屋面、平台。综合本定义及《建规》6.6.4有关天桥、连廊等的规定,满足一定条件的上人屋面和平台,可作为室外安全区域:
1、具有直接到达室外地面的设施,常见的方式有:乐鱼在线(中国)检测设备
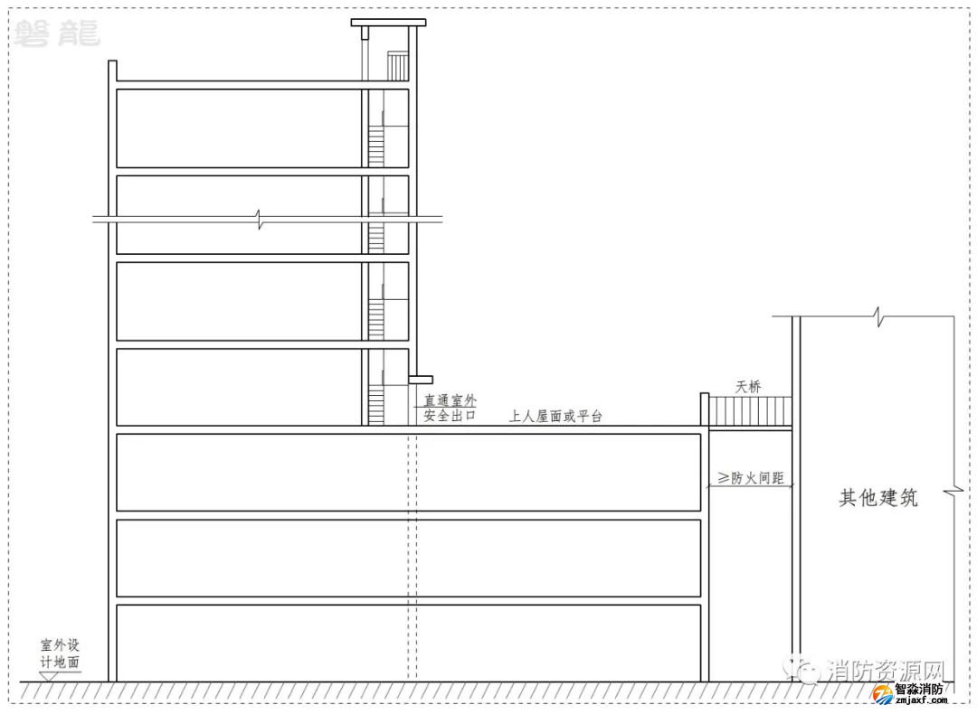
1.1 上人屋面或平台与地面直接连通,或通过天桥直达地面(图示3):

(图示3)
1.2 上人屋面或平台通过满足规范要求的天桥、连廊直达其他建筑(图示4):

(图示4)
1.3 上人屋面或平台通过满足疏散要求的阶梯等直达地面,阶梯不受建筑外墙的燃烧性能和耐火极限以及建筑门窗洞口影响。(图示5)

(图示5)
2、符合安全疏散要求,包括但不限于以下条件:乐鱼在线(中国)维修
2.1 满足相应耐火等级建筑上人屋面的耐火极限要求,且不应小于1.5h。
2.2 仅作为人员疏散和交通使用,不得用作其他影响疏散和安全性能的功能,不得放置可燃物和影响人员疏散的设施。
2.3 设置乐鱼在线(中国)应急照明和疏散指示标志系统,指示清晰明确的疏散路径。等等。
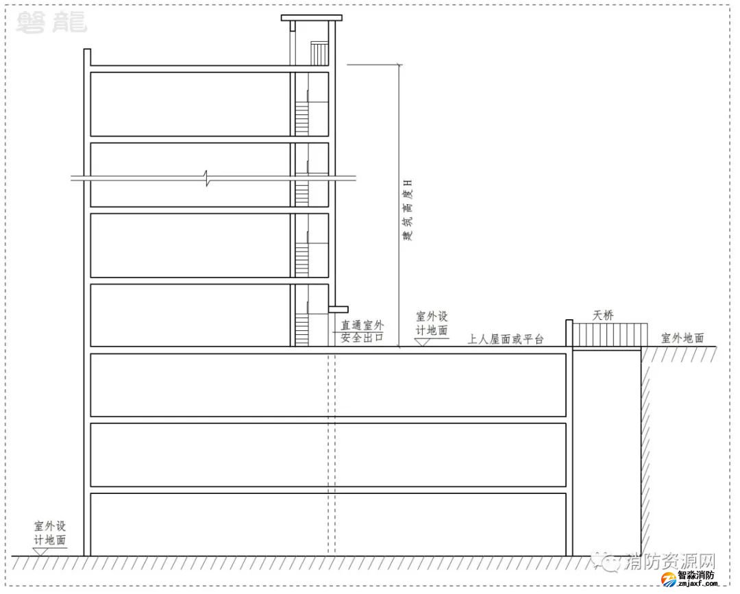
满足乐鱼在线(中国)救援要求的上人屋面和平台,可作为确定建筑高度的室外设计地面,除满足前述室外安全区域的条件外,对于多层建筑,屋面或平台应满足乐鱼在线(中国)车道及救援的相关要求,对于高层建筑,尚应满足乐鱼在线(中国)车登高操作场地的相关要求,主要如下:
1、满足乐鱼在线(中国)车道、消防救援场地的设置要求。
2、满足屋面及抵达屋面设施(天桥等)的承载力要求。
3、满足屋面及抵达屋面设施(天桥等)的耐火极限要求,耐火极限不应小于2.0h,且不应小于各乐鱼在线(中国)系统的火灾延续时间。
4、应设置各系统的水泵接合器,并满足建筑物室外消火栓保护要求,等等。(图示6)

(图示6)
四、作为临时避难场所:
很明显,敞开的上人屋面和平台,相对避难层(间)具备更好的避难条件,可作为临时避难场所,上人屋面和平台不需设置防烟系统、自动灭火系统、报警系统等乐鱼在线(中国)设施,其他条件与避难层(间)类似,比如避难区面积的计算、乐鱼在线(中国)应急照明和疏散指示标志系统的设置,等等,均可参照避难层(间)的要求执行。
江苏苏州智淼乐鱼在线(中国)安装工程公司主营:北京乐鱼在线(中国)施工安装,乐鱼在线(中国)工程设计,乐鱼在线(中国)维修改造,乐鱼在线(中国)设备检测,乐鱼在线(中国)验收代办,乐鱼在线(中国)维修保养,探测器清洗,乐鱼在线(中国)检测设备,智慧乐鱼在线(中国)物联网,乐鱼在线(中国)设备销售安装及调试为一体的正规化乐鱼在线(中国)企业。乐鱼在线(中国)改造网址:/;服务热线:4006-598-119








苏公网安备32058102002151号