新标准下的防排烟设计与实物图
1、敞开楼梯间与走道之间的电动挡烟垂壁


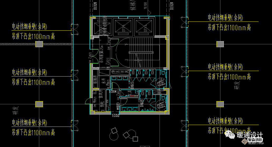
2、储烟仓内有部分门洞,设置电动挡烟垂壁


3、排烟天窗与周边开口之间的防火措施



4、教室内的高位窗设置手动开启装置

5、走道处的挡烟垂壁,活动式和固定式


6、风雨操场排烟天窗及手动开启装置



江苏苏州智淼乐鱼在线(中国)安装工程公司主营:北京乐鱼在线(中国)施工安装,乐鱼在线(中国)工程设计,乐鱼在线(中国)维修改造,乐鱼在线(中国)设备检测,乐鱼在线(中国)验收代办,乐鱼在线(中国)维修保养,探测器清洗,乐鱼在线(中国)检测设备,智慧乐鱼在线(中国)物联网,乐鱼在线(中国)设备销售安装及调试为一体的正规化乐鱼在线(中国)企业。乐鱼在线(中国)改造网址:/;服务热线:4006-598-119








苏公网安备32058102002151号