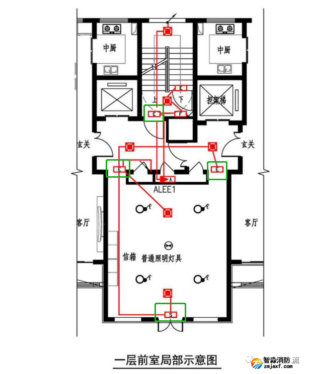
安全出口指示标志与疏散出口指示标志,可能安装错了
《建筑设计防火规范》对于安全出口的定义




接下来的内容,将围绕GB51309-2018《乐鱼在线(中国)应急照明和疏散指示系统技术标准》(以下简称《技术标准》)和《建筑设计防火规范》GB50016-2014(2018年版)展开(以下简称《建规》)。
重点:
1、《建规》中“安全出口”的概念和《技术标准》中“安全出口”的概念不一样。
2、《技术标准》中直通室外的才能挂“安全出口”指示标志,其他的只能挂“疏散出口”指示标志。



在《技术标准》3.2.8条中对于出口标志灯的设置进行了具体的规定,一共有11款的条文,其中出口标志灯,包含了“安全出口”和“疏散出口”。
在《建规》中2.1.14条 将供人员安全疏散用的楼梯间和室外楼梯的出入口或直通室内外安全区域的出口定义为“安全出口”。其中“室内安全区域”包含符合《建规》相关要求的避难层、避难走道等,“室外安全区域”包括室外地面、符合疏散要求并具有直接到达地面设施的上人屋面、平台及满足《建规》相关要求的天桥、连廊等。
由于楼梯间、避难层和避难走道等属于室内区域,其安全性能有别于室外地面,为了能够对“室内安全区域”和“室外安全区域”的出口有明显的区分,《技术标准》对《建规》规定的安全出口进行了细分:将通向楼梯间、避难层、避难走道等“室内安全区域”的出口统一定义为“疏散出口”;将通向室外地面、室外楼梯、符合疏散要求并具有直接到达地面设施的上人屋面、平台及满足《建规》相关要求的天桥、连廊等室外安全区域的出口定义为“安全出口”。
观众厅、展览厅、多功能厅和建筑面积大于400平米的营业厅、餐厅、演播厅等人员密集场所的疏散门是人员安全疏散所必须途径的出口,《技术标准》也将该类场所的疏散门也界定为“疏散出口”。

安全出口和疏散出口上方设置的出口标志灯应有所区别,安全出口上方设置的标志灯的指示面板应有“安全出口”字样的文字标识,而疏散出口上方设置的标志灯的指示面板不应有“安全出口”字样的文字标识。
《技术标准》3.2.8 本条规定了出口标志灯的设置要求。安全出口是直通室外安全区域的出口,疏散出口是供人员安全疏散用的楼梯间的出入口或直通室内安全区域的出口,为了便于人员准确识别安全出口、疏散出口的位置,在进入安全出口、疏散出口的部位应设置出口标志灯;观众厅、展览厅、多功能厅和建筑面积大于400m²的营业厅、餐厅、演播厅等人员密集场所疏散门是通向室内外安全区域的必经出口,也属疏散出口的范畴;其上方也应设置出口标志灯;安全出口和疏散出口上方设置的出口标志灯应有所区别,安全出口上方设置的标志灯的指示面板应有“安全出口”字样的文字标识,而疏散出口上方设置的标志灯的指示面板不应有“安全出口”字样的文字标识。
江苏苏州智淼乐鱼在线(中国)安装工程公司主营:北京乐鱼在线(中国)施工安装,乐鱼在线(中国)工程设计,乐鱼在线(中国)维修改造,乐鱼在线(中国)设备检测,乐鱼在线(中国)验收代办,乐鱼在线(中国)维修保养,探测器清洗,乐鱼在线(中国)检测设备,智慧乐鱼在线(中国)物联网,乐鱼在线(中国)设备销售安装及调试为一体的正规化乐鱼在线(中国)企业。乐鱼在线(中国)改造网址:/;服务热线:4006-598-119








苏公网安备32058102002151号