一、地下防水工程质量控制要点
1、防水混凝土
① 防水混凝土的变形缝、施工缝、后浇带、穿墙管道埋设件的设置和构造必须满足设计要求,严禁有渗漏。
②防水混凝土结构表面应坚实、平整,不得有露筋、蜂窝等缺陷;埋设件位置应正确。
③防水混凝土结构表面的裂缝宽度不应大于0.2mm,并不得贯通。
④防水混凝土结构厚度不应小于250mm,允许偏差为+15mm、-10mm;迎水面钢筋保护层不小于50mm,允许误差±10mm。
2、细部构造
①变形缝、施工缝、后浇带、穿墙管道、埋设件的细部构造做法必须符合设计要求。
②止水带中心线应与变形缝中心线重合,止水带应固定牢靠、平直,不得有扭曲现象。
③穿墙管止水环与主管或翼环与套管应连续满焊,并作防腐处理。
④接缝处混凝土表面应密实、洁净干燥,密封材料应嵌填严密、粘接牢固,不得有开裂、鼓泡和下塌现象。
3、卷材防水层
①卷材防水层及其转角处、变形缝、穿墙管道的细部做法必须符合设计要求。底板垫层混凝土平面部位的卷材宜采用空铺法或点粘法,其他与混凝土结构相接触的部位应采用满粘法。
②防水基层必须应牢固,洁净、平整不得有空鼓、松动、起砂和脱皮现象,铺贴卷材前应使基层表面干燥,基层含水率小于9%,新作业面施工前先用简易法测基层含水率,即用1㎡的卷材覆盖4h后察看凝结水情况,若无凝结水即可进行卷材的铺贴。卷材防水层的基层基层阴阳角处应做成圆弧形,圆弧半径不小于50mm。
③卷材防水层的搭接缝宽度,短边150mm、长边100mm,允许误差-10mm,搭接缝应粘接牢固,密封严密,不得有皱折,翘边、鼓泡等缺陷。
④侧墙卷采防水层的保护层与防水层应粘接牢固,结合紧密,厚度均匀一致。在立面与平面的转角处,卷材的接缝应留在平面上,距立面不应小于600mm;阴阳角处找平层应做成圆弧或45°(135 °)角,并应增加1层相同的卷材,宽度不宜小于500mm。点击>>工程资料免费下载
二、卷材防水铺贴顺序

工艺说明:
1、先铺贴阴阳角等部位的加强层,在将地坑、后浇带等处的防水卷材铺贴完毕厚再铺大面。先铺平面,后铺立面,交叉处应交叉搭接。
2、墙体竖向钢筋搭接范围必须保证有三道水平筋通过,墙体水平钢筋搭接范围内必须保证有三道竖向筋通过。
3、接槎处理到位,接缝平实。
三、底板及防水卷材错槎接缝


工艺说明:
同一层相邻两幅卷材的横向接缝,应彼此错开1500mm以上,避免接缝部位集中。上下层及相邻两幅卷材要错开,防水卷材的短边和长边(横缝和纵缝),其搭接宽度均不应小于100mm。立面与平面的转角处、卷材的接缝应留在结构板的平面上,距离立面应不小于600mm。
四、底板及地下室外墙防水

其中防水层改为4mm厚-20度SBS防水卷材(满铺),保护墙采用120厚砖砌体(筏板外边缘采用240厚砖砌体做为模板用)。原设计基础垫层上部的20厚水泥砂浆找平层取消,改为100厚C20砼表面撒1:1干水泥砂找平压光。筏板外边缘砖砌体砖模处增加一道4mm厚-20度SBS防水卷材。

其中防水层改为4mm厚-20度SBS防水卷材(满铺),保护墙采用120厚砖砌体(筏板外边缘采用240厚砖砌体做为模板用)。原设计基础垫层上部的20厚水泥砂浆找平层取消,改为100厚C20砼表面撒1:1干水泥砂找平压光。筏板外边缘砖砌体砖模处增加一道4mm厚-20度SBS防水卷材。
五、卷材转角搭接做法


六、电梯井、集水坑防水

其中卷材防水层改为两道4mm厚-20度SBS防水卷材(满铺),原设计基础垫层上部的20厚水泥砂浆找平层取消,改为100厚C20砼表面撒1:1干水泥砂找平压光。
电梯井坑、集水坑内墙面防水做法:a、基层;b、20厚1:2.5水泥砂浆找平压光;c、1.2厚JS防水涂膜防水;d、20厚1:2.5水泥砂浆找平压光。
点击>>工程资料免费下载

工艺说明:
电梯井、积水坑基层阴阳角必须做成≥ 50mm的圆弧或45°(135 ° )八字角,阴阳角、立面内角、外角及施工缝处均做500mm宽的附加层。建议电梯井、积水坑斜面的第二层防水卷材采用带有砂粒的,以便于防水保护层的施工。
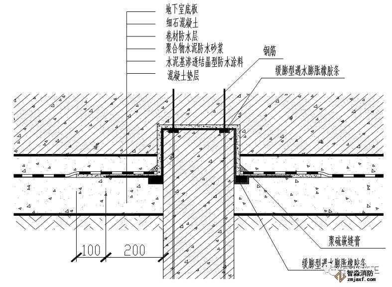
七、桩头防水





工艺说明:
在桩头、桩侧及桩侧外围200mm范围内垫层的表面涂刷水泥基渗透结晶型防水涂料,在桩头根部及桩头钢筋根部凹槽内埋设遇水膨胀橡胶条,在桩顶、桩侧及桩侧外围300mm范围内垫层上表面5mm厚聚合水泥防水砂浆。待基层达到卷材施工条件时进行大面积防水卷材施工,卷材施工完毕后在桩侧与卷材接缝处嵌聚硫嵌缝膏。
八、底板后浇带防水

后浇带增加一道4mm厚-20度SBS防水卷材。
工艺说明:
底板后浇带处先做防水卷材附加层,再大面卷材防水卷材。在绑扎底板钢筋时,用附加钢筋将橡胶止水带固定在底板后浇带的中间。
九、外墙后浇带防水

工艺说明:地下室外墙后浇带在做防水施工前,内侧的卷材保护层先施工。铺贴外墙卷材时,先在剪力墙外侧铺一层防水加强层,然后大面卷材直接铺过与之盖板。绑扎墙体钢筋时,用附加筋将止水钢板固定墙体中间。
十、地下室顶板后浇带
室外地下室顶板防水做法:a、现浇砼板b、20厚1:3水泥砂浆找平压光;c、两道4mm厚-20度SBS防水卷材(满铺);d、无纺布隔离层一道;e、80厚C20砼保护层找平压实。

工艺说明:地下室顶板后浇带在做防水施工前,内侧的卷材保护层先施工。铺贴顶板卷材时,先在顶板外侧铺一层防水加强层,然后大面卷材直接铺过与之盖板。绑扎墙体钢筋时,用附加筋将BW止水条固定墙体中间。
十一、外墙防水卷材搭接


工艺说明:
1、铺贴外墙卷材之前,应先将接槎部位的卷材揭开,并将其表面清理干净,如卷材有局部损伤,应及时进行修补后方可继续施工,两层卷材应错槎接缝,错开距离不得小于350㎜,上层卷材应盖过下层卷材。两幅卷材的搭接长度,长边与短边均应不小于100mm。 点击>>工程资料免费下载
2、接缝处理:用喷灯充分烘烤搭接边上层卷材底面和下层卷材上表面沥青涂盖层,必须保证搭接处卷材间的沥青密实熔合,且有熔融沥青从边端挤出,形成宽度约2mm的匀质沥青条,达到封闭接缝口的目的。
十二、外墙散水防水

工艺说明:
防水收口位置设置在距室外散水150mm处,末端先用3mmX25mm金属压条钢钉固定(间距200mm),用钢钉固定后再用密封胶将上口密封。散水与外墙之间预留30mm宽的缝隙,采用嵌缝油膏灌严。
十三、施工缝止水钢板


工艺说明:
1、止水钢板中心点距离筏板顶面300cm。
2、钢板的凹面应朝向迎水面,转角处止水钢板应做成45°角。止水钢板居中布置。橡胶止水带及钢板橡胶止水带做法同上。
3、迎水面施工缝处增加附加防水层一道宽400cm。
十四、施工缝止水条

工艺说明:
1、BW止水条中心点距离筏板顶面300cm。
2、在浇筑混凝土时,在施工缝部位埋植30㎜×10㎜木条,沿墙厚居中留置出宽30 ㎜、深10 ㎜通长凹槽,混凝土接缝前将止水条放入凹槽内,用水泥钉固定。遇水膨胀止水条应具有缓胀性能,7d膨胀率不应大于低膨胀率的60%。
3、迎水面施工缝处增加附加防水层一道宽400cm。
十五、墙体竖向施工缝止水带

工艺说明:
1、橡胶止水带中心点距离筏板顶面300cm。
2、在支设结构模板时,把止水带的中间夹于木模上,同时将木板钉在木模上,并把止水带的翼边用钢丝固定在侧模上,然后浇筑混凝土,待混凝土达到一定强度后,拆除端模,用钢丝将止水带另一翼边固定在侧模上,再浇筑另一侧的混凝土。
3、迎水面施工缝处增加附加防水层一道宽400cm。
十六、刚性穿墙管迎水面防水


十七、翼环式管道穿墙详图

十八、群管穿墙防水构造

十九、柔性穿墙管迎水面防水

工艺说明:
在进行大面积防水卷材铺贴前,应先穿好带有止水环的设备管道(止水环外径比套管内径小4mm),并固定好,设备管道与套管之间的缝隙先填塞沥青麻丝,再填塞聚硫密封膏 ,将防水卷材收口嵌入设备管道与套管之间的缝隙,再用聚硫密封膏灌实,最后做一层矩形加强层防水卷材。穿墙管与内墙角凹凸部位的距离应大于250mm,管与管的间距应大于300mm。
二十、螺栓孔眼处理

工艺说明:
拆模后将预埋的垫块取出,沿混凝土结构边缘将螺栓割断,对割断处进行涂刷防锈漆处理后,嵌入防水油膏(嵌入2/3),最后用聚合物砂浆将螺栓眼抹平。

二十一、卷材防水层封边

工艺说明:
防水收口位置设置在距室外散水下150mm处,浇筑墙体混凝土时应预留凹槽,防水末端先用3㎜×25㎜,金属压条钢钉固定(间距500㎜再用密封膏封闭。

工艺说明:
防水收口位置设置在距室外散水下150mm处,浇筑墙体混凝土时应预留凹槽,防水卷材施工时,将防水卷材端部压在凹槽中,待室外散水施工完再用密封膏将凹槽及散水与外墙缝隙灌严。
二十二、保护墙构造

工艺说明:
保护墙轮廓尽量平直,保护墙每隔5--8米及转角处必须留缝。
二十三、卷材防水层甩槎

工艺说明:
从底板折向立面的卷材与永久保护墙的接触部位,采用空铺法施工。2层卷材接槎部位先甩出搭接长度350mm、500mm(超过第一道施工缝),顶端临时用石灰砂浆砌四皮砖固定。待结构墙体做外防外贴卷材防水层时,分层错槎接缝。
二十四、卷材防水层平面阴阳角

工艺说明:
平面阴阳角附加层卷材按上图所示形状的下料和裁剪。附加层卷材铺贴时,不要拉紧,要自然松铺,无皱折即可。
二十五、卷材防水层三面阴角

工艺说明:
三面阴角附加层卷材按上图所示形状的下料和裁剪。附加层卷材铺贴时,不要拉紧,要自然松铺,无皱折即可。
二十六、外墙阳角防水

工艺说明:
外墙防水基层必须平整、牢固,表面尘土、砂层等杂物清扫干净,且不得有凹凸不平、松动空鼓、起砂、开裂等缺陷;表面的阳角处,均应做成圆弧形或钝角,阳角圆弧半径为50mm,阳角部位加铺一层卷材加强层,加强层采用聚酯毡胎体加厚的SBS防水卷材,加强层过角线两层各不小于250mm。
江苏苏州智淼乐鱼在线(中国)安装工程公司主营:北京乐鱼在线(中国)施工安装,乐鱼在线(中国)工程设计,乐鱼在线(中国)维修改造,乐鱼在线(中国)设备检测,乐鱼在线(中国)验收代办,乐鱼在线(中国)维修保养,探测器清洗,乐鱼在线(中国)检测设备,智慧乐鱼在线(中国)物联网,乐鱼在线(中国)设备销售安装及调试为一体的正规化乐鱼在线(中国)企业。乐鱼在线(中国)改造网址:/;服务热线:4006-598-119








苏公网安备32058102002151号