工程安装

当前位置:首页>>乐鱼在线(中国)工程>>工程安装

七氟丙烷灭火系统设置要求及图示

作者: 乐鱼在线(中国)改造安装 时间:2019-09-12 16:38:06 来源:/
摘要:设计浓度 七氟丙烷灭火系统 的灭火设计浓度不应小于灭火浓度的1.3倍,惰化设计浓度不应小于惰化浓度的1.1倍 图书、档案、票据和文物资料库等防护区,灭火设计浓度宜采用10% 油浸变...

设计浓度
  七氟丙烷灭火系统的灭火设计浓度不应小于灭火浓度的1.3倍,惰化设计浓度不应小于惰化浓度的1.1倍
  图书、档案、票据和文物资料库等防护区,灭火设计浓度宜采用10%
  油浸变压器室、带油开关的配电室和自备发电机房等防护区,灭火设计浓度宜采用9%
  通讯机房和电子计算机房等防护区,灭火设计浓度宜采用8%
  防护区实际应用的浓度不应大于灭火设计浓度的1.1倍
  设计喷放时间
  在通讯机房和电子计算机房等防护区,设计喷放时间不应大于8s
  在其它防护区,设计喷放时间不应大于10s
  灭火浸渍时间应符合下列规定:
  1.木材、纸张、织物等固体表面火灾,宜采用20min
  2.通讯机房、电子计算机房内的电气设备火灾,应采用5min
  3.其它固体表面火灾,宜采用10min
  4.气体和液体火灾,不应小于1min
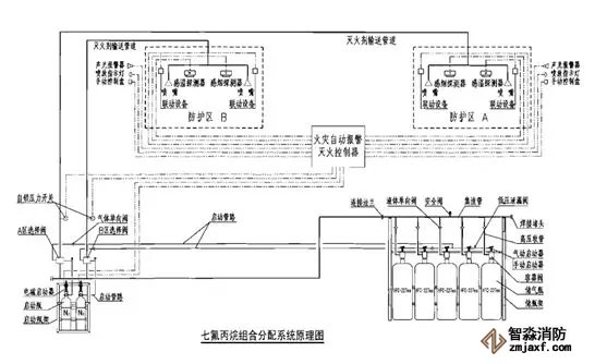
  组合分配系统
  两个或两个以上的防护区采用组合分配系统时,一个组合分配系统所保护的防护区不应超过8个
  组合分配系统的灭火剂储存量,应按储存量最大的防护区确定
  灭火系统的灭火剂储存量,应为防护区设计用量与储存容器的剩余量和管网内的剩余量之和
  灭火系统的储存装置72小时内不能重新充装恢复工作的,应按系统原储存量的100%设置备用量
  灭火系统的设计温度,应采用20℃
  同一集流管上的储存容器,其规格、充压压力和充装量应相同
  同一防护区,当设计两套或三套管网时,集流管可分别设置,系统启动装置必须共用。各管网上喷头流量均应按同一灭火设计浓度、同一喷放时间进行设计
  管网上不应采用四通管件进行分流
 
  注:喷头的保护高度和保护半径,应符合下列规定:
  1.最大保护高度不宜大于6.5m
  2.最小保护高度不应小于0.3m
  3.喷头安装高度小于1.5m时,保护半径不宜大于4.5m
  4.喷头安装高度不小于1.5m时,保护半径不应大于7.5m
  喷头宜贴近防护区顶面安装,距顶面的最大距离不宜大于0.5m
  一个防护区设置的预制灭火系统,其装置数量不宜超过10台
  同一防护区内的预制灭火系统装置多于1台时,必须能同时启动,其动作响应时差不得大于2s

江苏苏州智淼乐鱼在线(中国)安装工程公司主营:北京乐鱼在线(中国)施工安装,乐鱼在线(中国)工程设计,乐鱼在线(中国)维修改造,乐鱼在线(中国)设备检测,乐鱼在线(中国)验收代办,乐鱼在线(中国)维修保养,探测器清洗,乐鱼在线(中国)检测设备,智慧乐鱼在线(中国)物联网,乐鱼在线(中国)设备销售安装及调试为一体的正规化乐鱼在线(中国)企业。乐鱼在线(中国)改造网址:/服务热线:4006-598-119

乐鱼在线(中国)工程

联系我们
Contact
联系我们
我们很想听到您的声音

400电话:4006-598-119

联系电话:18751140119

公司传真:0512-52847706

手机号码:18910580194

客服QQ:1334605518

Email:1334605518@qq.com

地址:江苏省苏州市常熟市黄河路275号城市之星119室

专业提供乐鱼在线(中国)工程施工整体解决方案

全国服务热线:18910580194

立即预约

ABOUT US

乐鱼在线官网平台

智淼乐鱼在线(中国)工程技术有限公司

智淼君安(江苏)乐鱼在线(中国)工程技术有限公司,是一家专业从事乐鱼在线(中国)工程设计、乐鱼在线(中国)弱电施工、乐鱼在线(中国)改造、报建、乐鱼在线(中国)维修维保、乐鱼在线(中国)检测的乐鱼在线(中国)企业;销售火灾自动报警系统各种品牌、智慧乐鱼在线(中国)设备、乐鱼在线(中国)物联网系统、一二级乐鱼在线(中国)检测设备仪器、自动灭火系统、室内外消火栓系统、防排烟设施系统、灭火器、防火 了解详情+
智淼乐鱼在线(中国)工程技术有限公司
专业的技术·全新的施工安装服务,咨询热线:18910580194
智淼君安(江苏)乐鱼在线(中国)工程技术有限公司

智淼君安(江苏)乐鱼在线(中国)工程技术有限公司主要业务有火灾报警系统的销售、设计、安装、乐鱼在线(中国)维修及乐鱼在线(中国)工程改造,乐鱼在线(中国)施工,乐鱼在线(中国)工程改造,乐鱼在线(中国)维保,一二级乐鱼在线(中国)检测设备,探测器清洗,乐鱼在线(中国)检测,气体灭火系统安装,电气火灾系统施工安装,乐鱼在线(中国)喷淋水系统安装,防火门系统施工安装等...

+MORE

乐鱼在线(中国)改造Installation and commissioning 乐鱼在线(中国)维修Inspection and maintenance

工程质监站科长的贪腐之路,工程人看完感觉熟头熟路了
工程质监站科长的贪腐之路,工程人看完感觉熟头熟路了

工程质监站科长的贪腐之路,工程人看完感觉熟头熟路了案例蒋庆树,男,1968年5月生,曾任绵阳市建设工程质量监督站工程师、科长等职。2022年4月,接受绵阳市纪委监委驻市委政法委纪检监察组纪律审查和北川县监委监察调查。2022年9月,蒋庆树因严重违反党的纪律并构成职务违法,被开除党籍和公职;其涉嫌受贿犯罪和巨额财产来 [详情]

服务支持Support

乐鱼在线(中国)工程

MORE+ 工程问题/ FAQ

关于施工方拒绝标记现场各点位号码的问题
在工程建设项目中,现场管理规范和施工组织的有序性是保障工程质量和进度的关键因素。其中,标记现场各点位号码是一项基本且重要的管理措施,旨在确保施工各环节的准确执行和信息的清晰传递。然而,近年来部分施工方出现拒绝标记现场各点位号码的现象,这不仅影响施工效率,还潜藏着质量和安全风险。本文将围绕施工方拒绝标...
住宅下商业服务网点能否布置民办幼儿园问题
随着城市化进程的不断加快,城市住宅区内商业服务网点的设置日益多样化。商业服务网点作为城市居民日常生活的重要组成部分,其布局和功能直接影响着居民的生活质量和社区的整体发展。近年来,随着社会对幼儿教育需求的不断增加,民办幼儿园作为学前教育的重要补充,其布置问题逐渐引发公众和政策制定者的关注。在这一背景下...
火灾显示盘显示问题
火灾显示盘作为现代建筑火灾报警系统的重要组成部分,承担着关键的信息传递和警示作用。其主要功能是实时显示火灾报警系统的状态信息,包括火警、故障、屏蔽等多种报警信息,确保工作人员能够第一时间准确掌握火灾现场的情况,及时采取有效措施。一、火灾显示盘的基本功能和重要性火灾显示盘是一种集监测、显示和控制于一体...
防火门窗能否装饰安装?要注意什么?
查验内容1.乐鱼在线(中国)电梯的位置、数量、前室门的形式、井壁及机房墙体耐火性能和防火构造、管线。2.乐鱼在线(中国)电梯载重量、首层入口处的标识和供乐鱼在线(中国)救援人员专用的操作按钮。3.电梯井底的防水、排水设施。4.前室或合用前室的面积、短边尺寸。5.前室或合用前室首层直通室外情况。6.乐鱼在线(中国)电梯轿厢内装修材料及专...
丁戊类仓库能否设置几个办公桌进行办公
丁戊类仓库,作为储存危险物品的场所,其安全管理具有极高的要求。在探讨其能否设置办公桌进行办公的问题时,我们必须将安全置于首位,并综合考虑相关法规、标准以及实际操作中的风险。首先,从安全角度来看,丁戊类仓库储存的物品通常具有易燃、易爆、腐蚀性或有毒等危险特性。这意味着仓库内部存在潜在的火灾、爆炸、化学...

友情链接 links

乐鱼在线(中国)改造 乐鱼在线(中国)检测仪器网 山东乐鱼在线(中国)检测设备 乐鱼在线(中国)安全评估设备 乐鱼在线(中国)评估设备 北京乐鱼在线(中国)改造 海湾乐鱼在线(中国)主机维修 四川乐鱼在线(中国)检测设备 气体灭火 乐鱼在线(中国)检测设备|人防检测仪器 江苏乐鱼在线(中国)检测仪器 探测器清洗 乐鱼在线(中国)检测设备 利达乐鱼在线(中国) 智淼乐鱼在线(中国)工程 电气火灾 海湾安全技术有限公司 海湾乐鱼在线(中国)公司 海湾乐鱼在线(中国) 海湾乐鱼在线(中国)设备 海湾气体灭火|利达气体灭火 乐鱼在线(中国)安全评估设备软件 四川乐鱼在线(中国)检测仪器 乐鱼在线(中国)安全评估软件 海湾气体灭火 海湾乐鱼在线(中国)气灭 利达气体灭火 利达乐鱼在线(中国)维修维保 海湾乐鱼在线(中国)维修 北京烟感清洗 北京乐鱼在线(中国)维修 烟感清洗|火灾探测器清洗 乐鱼在线(中国)安全评估软件 海湾乐鱼在线(中国)监控系统 气体灭火安装 乐鱼在线(中国)设施维护保养检测设备 乐鱼在线(中国)改造安装 海湾乐鱼在线(中国)器材 利达乐鱼在线(中国)器材 青鸟乐鱼在线(中国)器材 泛海三江乐鱼在线(中国)设备 上海松江乐鱼在线(中国)设备 深圳赋安乐鱼在线(中国)设备 泰和安乐鱼在线(中国)设备 依爱乐鱼在线(中国)设备 金鼎防爆乐鱼在线(中国)设备 尼特乐鱼在线(中国)设备 海湾乐鱼在线(中国)产品 利达乐鱼在线(中国)产品 乐鱼在线(中国)评估检测设备 乐鱼在线(中国)检测设备仪器 松江乐鱼在线(中国) 青鸟乐鱼在线(中国) 泰和安乐鱼在线(中国) 利达乐鱼在线(中国)设备 乐鱼在线(中国)气体灭火 智淼乐鱼在线(中国)商城网